【新签约】深圳三湘海尚别墅室内设计
发布人:Webmaster发布时间:2019-02-18阅读数 (2508)
项目名称:三湘海尚别墅室内设计
设计面积:㎡
服务内容:室内设计
签约时间:2019.2.18
设计时间:60天
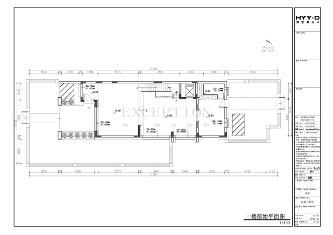
三湘海尚别墅室内设计二层原始平面图
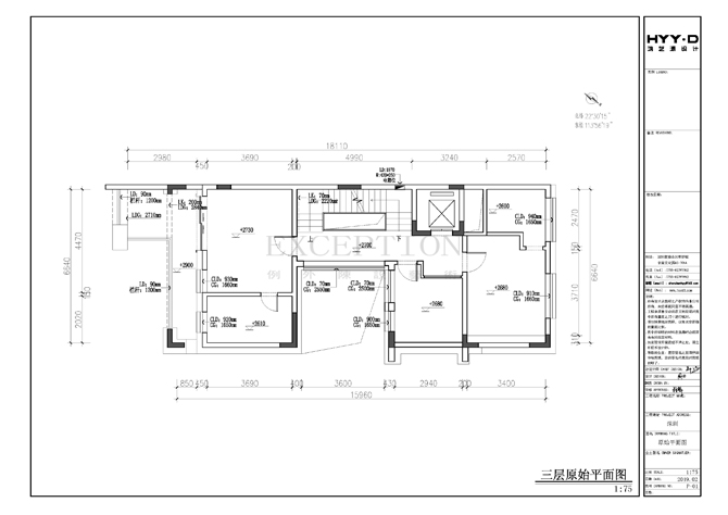
三湘海尚别墅室内设计三层原始平面图
三湘海尚别墅室内设计四层原始平面图
发布人:Webmaster发布时间:2019-02-18阅读数 (2508)
项目名称:三湘海尚别墅室内设计
设计面积:㎡
服务内容:室内设计
签约时间:2019.2.18
设计时间:60天
三湘海尚别墅室内设计二层原始平面图
三湘海尚别墅室内设计三层原始平面图
三湘海尚别墅室内设计四层原始平面图