室内设计公司

【新签约】深圳龟山别墅室内设计

发布人:Webmaster发布时间:2019-05-29阅读数 (2500)

项目名称:深圳龟山别墅室内设计
设计面积:734.20㎡
服务内容:室内设计
签约时间:2019.04.11
设计时间:60天

深圳龟山别墅设计一层原始结构图

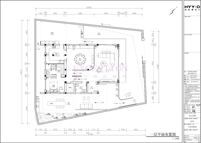
深圳龟山别墅设计负一层平面布置图

深圳龟山别墅设计二层原始结构图

深圳龟山别墅设计负二层平面布置图

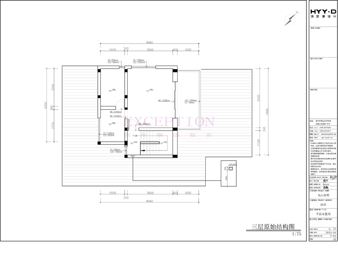
深圳龟山别墅设计三层原始结构图

深圳龟山别墅设计负三层平面布置图

深圳龟山别墅设计负一层原始结构图

深圳龟山别墅设计负一层平面布置图

服务热线 案例中心 联系我们 返回顶部